ladoga House
Scope of Work:
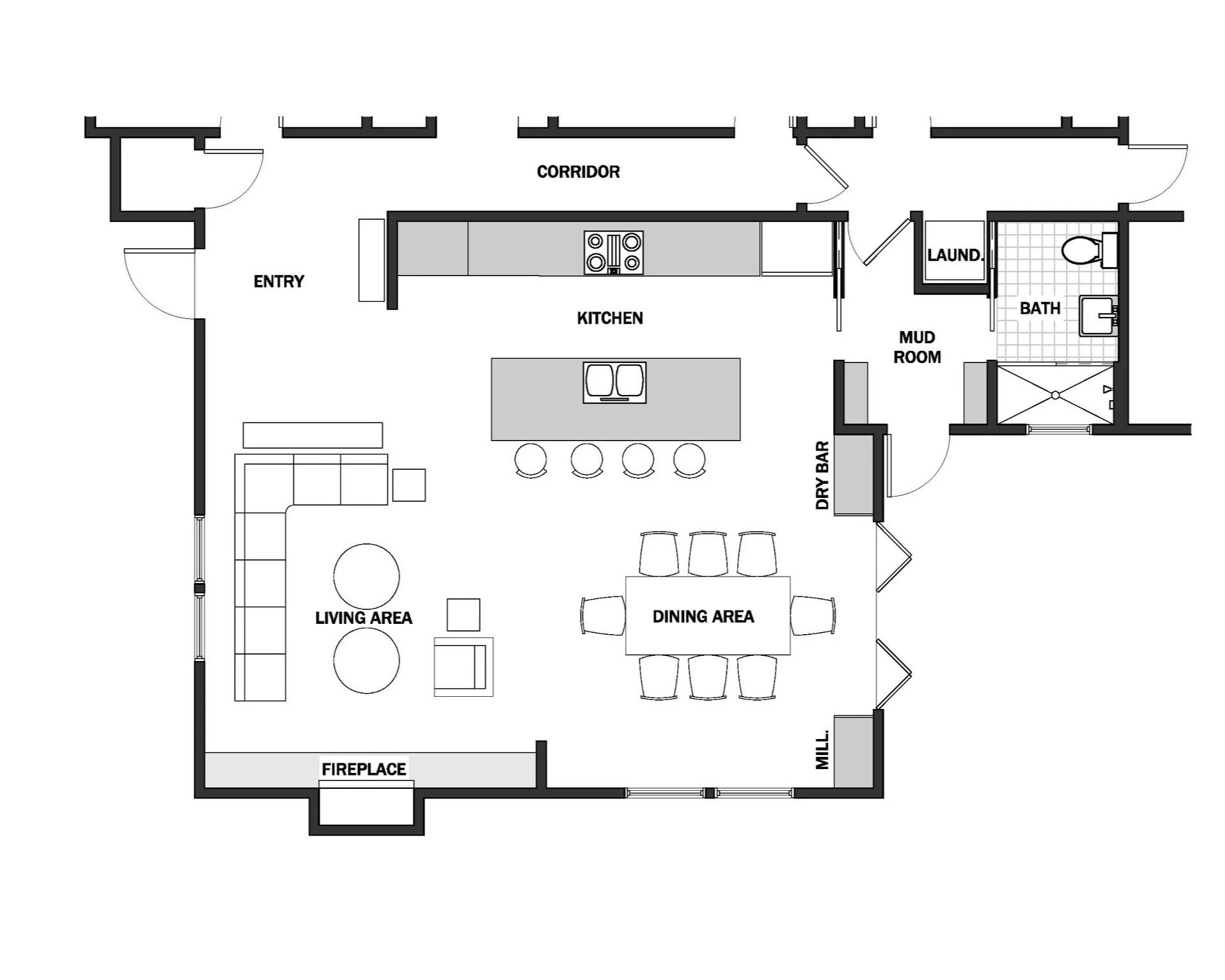
Living room, Kitchen, Dinning Area, and Guest Bath remodel
Year Completed:
2022
Scope of Work:
Living room, Kitchen, Dinning Area, and Guest Bath remodel
Year Completed:
2022